品深餐飲設計認為:品牌餐飲空間不僅是單純用餐的場所,而是承載著顧客對空間環境、心理感受以及服務體驗等更多需求,匯集了飲食、娛樂、交流、休閑、文化等為一體,成為推廣飲食文化、展現品牌內涵的商業處所,美學空間。
根據品深餐飲設計方法論:餐飲空間是品牌文化內涵的立體化表達,在滿足功能性、舒適性的同時,餐飲空間設計應該在有限的物質空間和無形的品牌文化內涵之間取得完美的平衡,讓顧客一見如故,再見傾心,在心智中扎下深刻的烙印。
品深餐飲設計負責的餐飲品牌店的空間設計是門頭形象、地面、墻面、天花頂飾、家具設備、燈飾照明、綠色植物、軟裝飾等多種因素和諧融合而成,顧客在空間中的活動,是一種連續而有趣的運動。在我們進行設計的時候要考慮到空間與人的呼應,既要相互獨立和相互聯系的各種功能空間,又要有便捷和流暢的動線路徑。

悅得閑廣式點心茶樓是品深餐飲2019年上半年的全案策劃設計項目,在完成了品牌命名,形象主色調設計,品牌LOGO設計之后,悅得閑廣式點心茶樓首家門店在龍崗中心城位置確定,總面積約500平米。
此次品深餐飲設計團隊悅得閑廣式點心茶樓項目組,在前期品牌策劃設計基礎上,提出了空間設計的四大核心目的和要求:
1、空間是悅得閑品牌內涵的直觀化、立體化表達。悅得閑的空間裝飾應該呈現鮮明的品牌特征,符合廣式點心茶樓的品類特性;
2、門店房租壓力大,空間中位置的分布,經濟指標要求合理,餐位的利用率高,盡快促使門店盈利回收成本;
3、裝修成本在預算范圍內,施工周期可控,裝飾材料較易采購,后期門店的維護較為簡單容易,后續門店的復制性強。
4、整個空間的品牌文化與品牌VI形象,空間整體色調、家具配飾、燈光款式應保持高度融合統一,完美展現品牌的文化內涵。

悅得閑廣式點心茶樓,整個品牌文化定位是純正廣式茶樓,得閑飲茶的廣式生活方式。所以,空間的整體應該聚焦在“廣式地域文化、閑適生活文化、明廚亮灶”三大要素,通過地域文化表達地道純正,明廚亮灶傳遞現做特色,母胎文化嫁接超級IP推動品牌持續被傳頌,根據我們的定位,我們的空間裝飾設計表達的主題是“一杯在手,半日清談”,我們的空間,應該是適合戀愛中的男女耳鬢廝磨,也適宜與家人密友開懷暢談,還適合商業人士話別敘舊,共謀商機。

品深餐飲設計悅得閑項目組在通過在悅得閑空間中植入文化線索和空間布局相串連,審美心理與營銷美學相融合,實現打造一步一景,疏密有致,人氣爆滿的主題空間。品深餐飲設計悅得閑空間設計項目組為了實現所提出的四大目的和要求,在以下8個方面系統思考,通力合作,最終實現了悅得閑廣式茶樓空間的特色差異化塑造,讓廣大顧客極為認可。
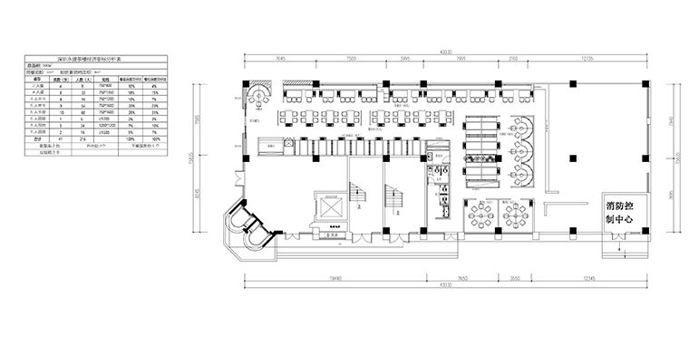
1、平面布局:悅得閑龍崗店餐廳實際使用面積約500平米,為了讓我們的新鮮現做是完全可以看得見,我們使用了明廚亮灶的做法,后廚的空間面積達到140平米,展示面盡可能開闊。餐區面積達到360平米,實際布置位置216個,其中六人位、六人半卡、六人圓卡占總餐位數的57%,四人位、四人圓卡占22%,八人位占7%,2人位占4%。這種餐位布局符合茶樓都是家庭客為主,用餐人數集中在4-6人的一家三代人為多的餐飲狀況。在滿足基本舒適度的同時,盡可能多布位置,提升餐廳的經濟效應指標。
2、坪效計算:坪效重點就是考慮位置的利用率和位置的分布狀況。通過我們的研究發現,深圳、廣州等地茶樓用餐座位利用率最高的多數是4人位和6人位。而在上海等地,最多應該是4人位和2人位。我們不僅要關注位置的數量,更應該綜合考慮位置的利用率。如果長期出現4個人的客人卻使用6人桌位,說明位置的實際實用率才70%而已,這是極度不合理的坪效。我們悅得閑的餐區位置6人位為主,4人位可以臨時拼接成8人位,甚至更多的位,滿足顧客的多樣化需求,提升餐區的位置利用率。

3、動線設計:在餐飲空間中的動線,就是指服務人員、顧客、物品運輸及消防疏散的路線。餐飲競爭越來越激烈,精細化運作越來越高,動線設計是整個餐飲品牌高效運作的基礎。而我們的茶樓,面對的人群家庭客比較多,老人和小孩比較多,點的菜品數量會比較多,餐廳的服務員也比較多。所以品深餐飲設計團隊根據這些特性,餐區主動線1條,寬度達到1.4米,次動線1.2米。此為餐廳面積利用率最高,且最流暢合理,方便快捷的動線。
4、整體色調:整個品牌以紅色、綠色、金色為主。其中紅色占比最高,一方面紅色最能溝起人們的食欲,紅色能給人以充滿活力的感覺,會刺激食欲。且紅色顯得熱鬧,具有傳統東方情節的老年人最為鐘愛大紅色的喜慶與吉祥。紅色太多會使空間過于悶和燥。所以我們局部使用了大面積的綠色,在安靜的同時,也能表達健康自然的養生概念。空間中通過紅色與綠色的撞色搭配,在傳遞茶樓屬性的同時,給人帶來美妙的色彩環境和舒適的氛圍,讓顧客樂在其中,且創造了鮮明的品牌調性。
5、主材選擇:馬克磚,居民住宅地面使用的馬克磚,灰磚、琉璃瓦紋樣磚相結合,具有濃郁的地域特色,放在現在時尚感依舊,還能表現很好的復古懷舊氣質。
不銹鋼材質的搭配使用,強烈的金屬質感很好傳達美食的精致和高品質特性,柔和的金屬光澤也帶來舒適的用餐感受。
墻面采用藝術漆,產生一種顆粒質感,塑造一種懷舊而不失優雅精致的氛圍。
木飾面的間隔使用,則是在餐區營造一種溫暖的木質感,沖淡了不銹鋼和瓷磚營造的冰冷感。
廣式花窗的大量使用則可以很好的表現廣式點心茶樓的品類屬性,具有一目了然,一見如故的特性。
6、家具軟裝:家具我們使用了紅色和綠色對撞,空間色調搖曳多姿。仿皮革的布藝沙發具有吸音的作用,且易打理,易維護。
7、燈光設計:燈光對餐飲空間環境塑造起著非常重要的作用,通過燈光設計塑造出不同的氣氛。我們茶樓屬于比較熱鬧的用餐氛圍,整個空間除了餐廳的整體基礎照明外,我們對局部照明使用了具有濃郁廣式點心茶樓特性的鳥籠燈,蒸籠燈,讓照明燈具也成為了空間美學的重要部分,讓顧客印象深刻。
8、門頭形象:門頭是品牌的臉面,也是顧客接觸我們的第一個場景。門頭形象具有廣而告之的作用,門頭代表著餐廳的名字叫什么,賣的產品是什么,這是最基本且不可或缺的要素。門頭完全可以作為全方位展示店特色的工具,巧妙的組合可用信息向客戶發送品牌信息,從而引發客戶興趣。悅得閑廣式點心茶樓的門頭大量使用鑊耳山墻,讓廣式茶樓的特性展露無遺。
通過以上8個方面的創新性空間設計,品深餐飲設計團隊將悅得閑廣式茶樓整體空間氛圍營造的非常好,產生了一種讓顧客迫不及待的想進來體驗,很好地傳遞品牌核心內涵;在顧客心智扎下印象,始終牢記悅得閑的品牌形象及內涵;個性鮮明地打造出差異化品牌形象,讓顧客產生舒適愉悅幸福地用餐感受,進而持續傳頌悅得閑品牌。
發布時間:2021-07-22 10:00:40 展現量:2553萬
來源:品深設計 聲明:本文來自于品深餐飲設計團隊,未經許可不得轉載,轉載請注明本文鏈接